TERAZ11°C
JAKOŚĆ POWIETRZA Bardzo dobra
reklama adm

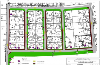
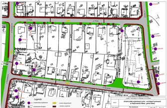
Zmiana organizacji ruchu w Sławie

pon., 15 lipca 2019 14:06

Ważna informacja dla kierowców
Od dzisiaj w Sławie zostaje wprowadzona zmiana organizacji ruchu w obrębie dróg gminnych. Obowiązuje ona ulice:

reklama

- Franciszka Niewidziajły,
- Jeziorną,
- Zacisze,
- Energetyczną,
- Parkową,
- Leśną,
- Słoneczną,
- Prostą. 
Na tych drogach wprowadza się zakaz zatrzymywania się i postoju w terminie od 15 czerwca do 15 września każdego roku. Wszystkich kierujących prosimy o zapoznanie się z informacją i dostosowanie się do wprowadzonych zmian.

(fb.slawa.pl)

Reklama

Podsumowanie

    Widziałeś coś ciekawego?

    Dodaj zdjęcie, film lub informację z miasta.

    Dodaj zw24.pl
    reklama
    Santander

    Komentarze 0

    reklama
    zw24 Zgłoś zdarzenie

    Dla Ciebie

    11°C

    Pogoda

    Kontakt

    Nekrologi