TERAZ11°C
JAKOŚĆ POWIETRZA Bardzo dobra
reklama Oaza - Pytal

Umowa podpisana! Tak będzie wyglądać nowa świetlica w Wyszanowie (FOTO)

czw., 22 grudnia 2022 10:07

Za 12 miesięcy mieszkańcy Wyszanowa będą mogli cieszyć się nową świetlicą. W środę (21 grudnia) Burmistrz Miasta i Gminy Jolanta Wielgus wraz ze Skarbnik Dorotą Raczycką podpisały umowę na realizację zadania pn. „Przebudowa wraz z termomodernizacją istniejącego budynku świetlicy wiejskiej w Wyszanowie” z wykonawcą robót – firmą: HUB „JAN-MAR” Marcin Janik z Brzeżan  w obecności radnej Rady Miejskiej Małgorzaty Fartuszyńskiej oraz sołtys wsi Wyszanów Wiolety Adamczyk.

Wartość realizacji zadania obejmujący wykonawstwo to kwota 2 334 885,94 zł. Na jego realizację Gmina Szlichtyngowa otrzymała dofinansowanie z Rządowego Funduszu Inwestycji Lokalnych w kwocie 1 275 000,00 zł.

Podpisane zostały również umowy z inspektorami nadzoru inwestorskiego w branżach: ogólnobudowlanej z firmą Biuro Inżynierskie Marian Szarejko z siedzibą we Wschowie, sanitarnej z firmą Usługi Projektowe Paweł Sąsiadek z siedzibą we Wschowie oraz elektrycznej z firmą Zakład Elektroinstalacyjno-Handlowy „WIS” Jerzy Woźniak z siedzibą w Lesznie.

Termin realizacji inwestycji to 12 miesięcy od dnia popisania umowy.

- Jest to ważny moment dla samorządu oraz mieszkańców sołectwa Wyszanów, gdyż inwestycja swoim zakresem obejmuje kompleksowy i generalny remont świetlicy wiejskiej, a także z tego względu, że remont świetlicy był jedną z najbardziej oczekiwanych przez lokalną społeczność inwestycji. Przygotowania do realizacji tej inwestycji rozpoczęliśmy już w roku 2020, gdy opracowano koncepcję przebudowy, którą zaakceptowali mieszkańcy na zebraniu wiejskim, a także przeznaczyli środki z funduszu sołeckiego na opracowanie dokumentacji projektowej. Cieszy także to, że na wykonanie tego zadania otrzymaliśmy dofinansowanie w kwocie ponad miliona złotych – mówi Burmistrz Jolanta Wielgus.

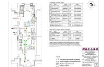
Inwestycja obejmuje: termomodernizację całego budynku w zakresie ocieplenia ścian od wewnątrz, ocieplenie dachu oraz ocieplenie podłogi, wykonanie nowej elewacji, wymianę stolarki okiennej i drzwiowej, remont pomieszczenia zaplecza kuchennego i powiększenie go o pomieszczenia dawnych sanitariatów, które po przeprowadzonych pracach pełniły będą funkcję zmywalni kuchennej, rozebranie istniejącej dobudówki i wybudowanie nowej, gdzie urządzone zostaną sanitariaty, zapewnienie dostępu do budynku dla osób z trudnościami w poruszaniu się poprzez dobudowę rampy, przebudowę schodów wejściowych i wykonanie nowych ze spocznikami i barierkami, wykonanie nowej podłogi, wykonanie nowych instalacji: elektrycznej i wodno-kanalizacyjnej, zakup wyposażenia kuchni, takich jak np. lodówki, blaty robocze, szafy podawczej, zlewy dwukomorowe.

Źródło: Szlichtyngowa.pl

Reklama

Podsumowanie

    Widziałeś coś ciekawego?

    Dodaj zdjęcie, film lub informację z miasta.

    Dodaj zw24.pl
    reklama
    Santander

    Komentarze 0

    reklama
    zw24 Zgłoś zdarzenie

    Dla Ciebie

    11°C

    Pogoda

    Kontakt

    Nekrologi